

Строители нашли гильзу от противотанкового ружья, деформированные временем патрон и гранату, а также старинную подкову на месте сражения и подвига 17 героев бронебойщиков 107-й стрелковой дивизии у Майсюковой будки. Это молчаливые свидетели тех огненных лет.
31 января 1943 года у Набокинского железнодорожного разъезда в 8 км от Старого Оскола советские солдаты приняли неравный бой. Немецкий санный обоз, состоящий из 500 отборных гитлеровцев, вооружённых пулемётами и миномётами, не смог прорваться в город. После скоротечного сражения, после которого в живых осталось лишь четверо бойцов, фашисты были разгромлены нашим подоспевшим подкреплением. В бою из семнадцати героев в живых осталось лишь четверо бронебойщиков — Тихон Бабков, Абдыбек Бутбаев, Василий Кукушкин и Павел Рябушкин. Немцы потеряли около 300 солдат. Родина наградила 13 погибших бойцов орденами Отечественной войны I степени, оставшихся в живых орденами Красного Знамени.
В честь героев названы улицы Плотникова, Бондаренко, Литвинова. Есть в нашем городе и улица 17 героев.


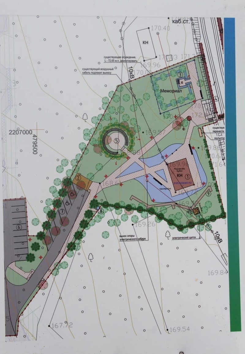
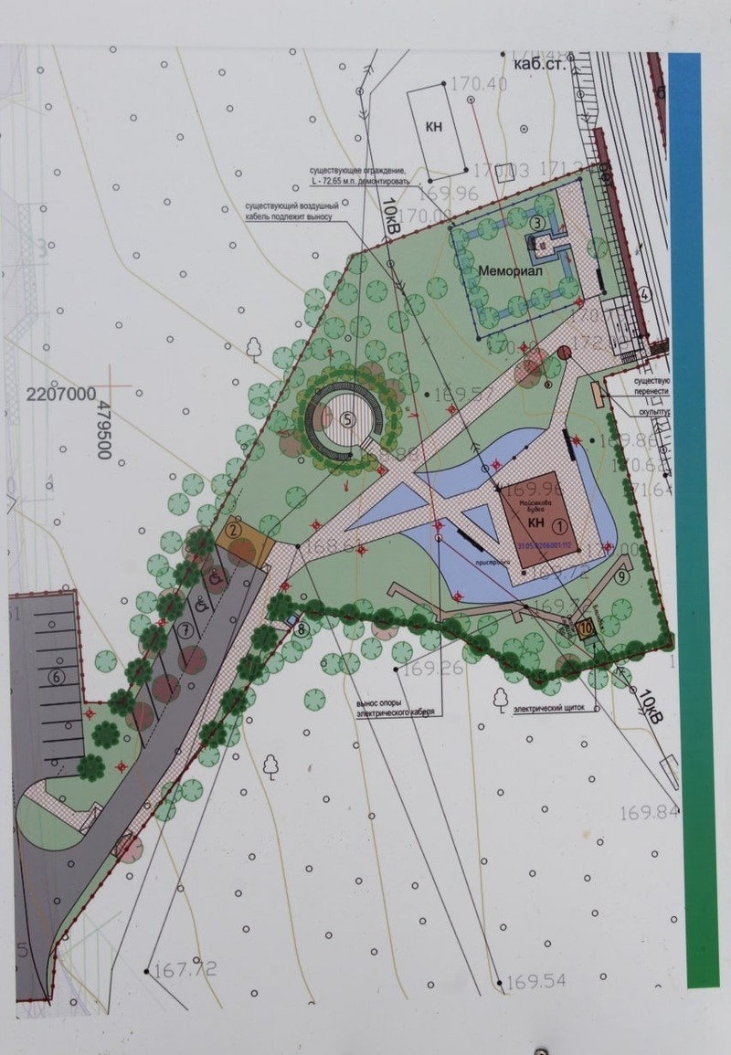
В 1968 году в восьми километрах от станции Старый Оскол, на 604 километре скульптором Ф.М. Бондарем в честь бойцов 409-го отдельного истребительно-противотанкового дивизиона 107-й стрелковой дивизии был установлен памятник из железобетона. Памятник представляет собой скульптуру воина в пилотке и плащ-палатке. Боец целует автомат – символ воинской клятвы. Рядом – мемориальная плита с именами 17-ти героев. Памятник ремонтные бригады компании «Славянка» ежегодно приводят в порядок. В феврале 2018 года недалеко от мемориала состоялась масштабная историческая реконструкция «Подвиг 17-ти». В нем принимало участие Старооскольское историко-патриотическое объединение «Поиск».


Многие старооскольцы хотели, чтобы подвиг героев был сохранён навечно. К сожалению, со временем от здания остались лишь три стены. В феврале 2023 года на прямой линии «10 вопросов губернатору» жительница Старого Оскола Анастасия попросила Вячеслава Гладкова помочь сохранить память об освобождении нашего города. Руководитель региона обещал это сделать. Глава администрации Старооскольского округа Андрей Чесноков сообщил в соцсетях о том, что разработан эскизный проект. Планировалось построить стеклянный купол и выставочную экспозицию – своё слово должны были сказать старооскольцы. И вот деньги на реконструкцию памятного для всех нас места выделены из федерального, областного и местного бюджетов.
Работы начались в начале июля и сейчас в самом разгаре. Бульдозер сделал планировку территории, сгрузил в кузов КамАЗ снятый грунт и спиленные ветви. Рядом раздаётся звук бензопилы – рабочие убирали старые заросли, создавая больше пространства. Появились контуры будущих дорожек: строители установили бордюры, отсыпали песок.


В здании практически завершено армирование пола. Заказчиком благоустройства территории в районе памятника 17-ти героев является управление капитального строительства округа. Генподрядчик – компания «ПрофСтрой»– из Белгорода. Генеральный директор Геннадий Чинин рассказал, что организация в нашем городе уже занималась благоустройством социальных объектов. В их числе музыкальная школа № 3, дворовые территории.
«Когда узнали, что будем приводить в порядок Майсюкову будку, решили сделать все от нас зависящее, чтобы не было стыдно за нашу работу, – говорит Геннадий Александрович.– Это наша память. У меня воевал дед. Для всех нас это святое место».


Первый заместитель директора УКСа Анна Плотникова рассказала о том, что оставшуюся часть здания сохранят. Над ним возведут стеклянный саркофаг. Пол зальют бетоном. Крышу также планируется сделать стеклянной. Внутри здания по периметру из бетона проложат дорожку. В центре под стеклом разместят оружие времён Великой Отечественной войны. Внутри и снаружи установят освещение и видеокамеры.
Анна Валериевна отметила, что в рамках заключённого с генподрядчиком первого контракта стоимость работ составляет около десяти млн рублей. Будет выполнена очистка здания и огрунтовка его специальными растворами. Также сделают бетонный пол и установят металлоконструкцию. При выполнении следующего контракта будет сделан стеклянный саркофаг. По периметру территории строители уложат около 800 кв. м тротуарных дорожек и кабельную линию для наружного освещения. Все работы планируется завершить к ноябрю текущего года.














